REQUEST A TOUR If you would like to see this home without being there in person, select the "Virtual Tour" option and your agent will contact you to discuss available opportunities.
In-PersonVirtual Tour

$ 1
6,000 SqFt
$ 1
6,000 SqFt
Key Details
Property Type Commercial
Sub Type Industrial Building
Listing Status Active
Purchase Type For Rent
Square Footage 6,000 sqft
MLS Listing ID 109159
Construction Status Under Construction,Building Permit #
Year Built 2025
Lot Size 6,000 Sqft
Acres 0.44
Property Sub-Type Industrial Building
Source Iron County Board of REALTORS®
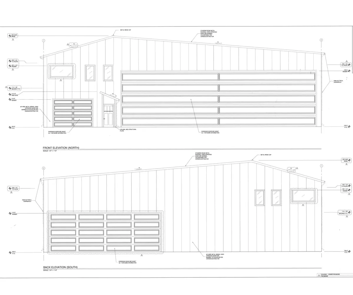
Property Description
This Airplane Hangar is to be built and can start as soon as we have a tenant. Brand new design and construction allows for the best when looking for hangar space. The available space is between 5000 to 6000 sq ft, along with office and storage space. we have plans that are approved and ready to begin if your client is ready as well. Only 1/2 of the hanger is available. Approx. 6,000. sq ft with upstairs offices and a restroom. Hangar to be built. $1.00 sq ft for hangar are and $1.25 sq ft for the office area.
Location
State UT
County Iron
Community Not Applicable
Interior
Heating Forced Air, Gas
Building
Structure Type Frame,Metal Siding
New Construction No
Construction Status Under Construction,Building Permit #
Others
Senior Community No
Tax ID B-1253-0035-00BL
Listed by D&B Real Estate (Cedar City)
GET MORE INFORMATION

Casey And Malea Jones
Broker-Owner | Lic# 10292449-AB